| (Safe and Relieve Valve - Packaging) |

 |
|
呼吸閥是固定在儲罐頂上的通風裝置,以保證罐內壓力的正常狀態,防止罐內超壓或真空使儲罐遭受損壞,也可減少罐內液體揮發損失。
根據中國《石油化工設計防火規范》(GB50160-92)的規定:“甲、乙類液體的固定頂罐,應設阻火器和呼吸閥”,大野公司研制開發DB型系列新產品,具有規格齊全,結構緊湊、重量輕、通風量大、泄露小等優點。產品有單呼閥、單吸閥、呼吸閥,各種結構型式均可與阻火器組合構造,也可配制所需的接管。 |
|
| 汽油、煤油、柴油、芳烴、硫、空氣等,或其他石油化工物料,阻火類別的選用根據“HGJ21-89”進行。 |
|
呼出壓力:B、+980Pa C、+1750Pa D、+4KPa E、+18KPa
吸入壓力:B、-295Pa C、-295Pa D、-0.5KPa
(操作壓力指標也可以由用戶指定)
使用環境溫度:-30°C -60°C |
|
1、呼吸閥代號以DB表示,DAB為阻火呼吸閥代號。
2、呼吸閥類型代號以吸入和呼出口有否接管來分類,見下表
| 代號 |
類型 |
代號 |
類型 |
DB1 |
呼吸閥 |
DAB1 |
阻火呼吸閥 |
DB2 |
帶雙接管呼吸閥 |
DAB2 |
帶雙接管阻火呼吸閥 |
DB3 |
帶吸入接管呼吸閥 |
DAB3 |
帶吸入接管阻火呼吸閥 |
DB4 |
帶呼出接管呼吸閥 |
DAB4 |
帶呼出接管阻火呼吸閥 |
DB5 |
單呼閥 |
DAB5 |
阻火單呼閥 |
DB6 |
單吸閥 |
DAB6 |
阻火單吸閥 |
DB7 |
帶接管呼出閥 |
DAB7 |
帶接管阻火呼出閥 |
DB8 |
帶接管吸入閥 |
DAB8 |
帶接管阻阻火吸入閥 |
3、主體材料代號見下表
| 代號 |
主體材料 |
閥盤和閥座 |
閥密封件 |
I |
ZG200-400 |
0Cr19Ni9Ti |
F4 |
II |
ZG0Cr18Ni9Ti |
和主體材料相同 |
III |
ZG0Cr18Ni9Ti |
IV |
ZG0Cr18Ni12Mo2Ti |
V |
ZA1Si7Mg |
|
|
|
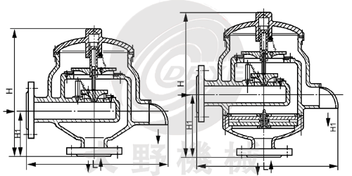
DB1型呼吸閥
DN50-400 |
DAB1型阻火呼吸閥
DN50-400 |
DN |
50 |
80 |
100 |
150 |
200 |
250 |
300 |
400 |
H
|
280 |
430 |
430 |
530 |
630 |
740 |
820 |
940 |
350 |
500 |
500 |
600 |
700 |
820 |
900 |
1020 |
L |
300 |
450 |
450 |
650 |
850 |
1000 |
1100 |
1250 |
|
|
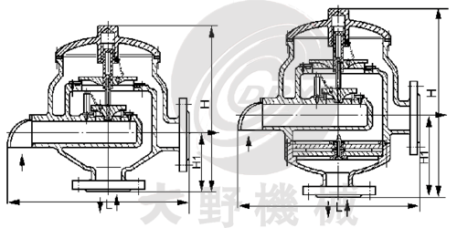
DB2型帶雙接管呼吸閥
DN50-250 |
DAB2型帶雙接管阻火呼吸閥
DN50-250 |
DN |
50 |
80 |
100 |
150 |
200 |
250 |
H
|
280 |
430 |
430 |
530 |
630 |
740 |
350 |
500 |
500 |
600 |
700 |
820 |
H1
|
110 |
180 |
180 |
220 |
260 |
320 |
180 |
250 |
250 |
290 |
330 |
400 |
L |
320 |
450 |
450 |
620 |
750 |
850 |
|
|
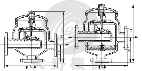
DB3型帶吸入接管呼吸閥
DN50-250 |
DAB3型帶吸入接管阻火呼吸閥
DN50-250 |
DN |
50 |
80 |
100 |
150 |
200 |
250 |
H
|
280 |
430 |
430 |
530 |
630 |
740 |
350 |
500 |
500 |
600 |
700 |
820 |
H1
|
110 |
180 |
180 |
220 |
260 |
320 |
180 |
250 |
250 |
290 |
330 |
400 |
L |
310 |
450 |
450 |
635 |
800 |
950 |
|
|
DB4型帶呼出接管呼吸閥
DN50-250 |
DAB4型帶呼出接管阻火呼吸閥
DN50-250 |
|
|